Apartment for sale in Bakuriani in Bakuriani
Description
Publication date: 10.01.2025
| Property type | Townhouse |
| Area | 363.00 m2 |
| Bedrooms | Studio |
| Price | 272,250$ |
| Buy online | Details |
| Floors | — |
| Condition | Without renovation |
| Has furniture | No |
| Has home appliances | No |
| Building condition | New building |
| Heating type | Central |
| Security | — |
| Conveniences | |
| Cadastral number | 64.30.04.988 |
Information
Продаются два прекрасных объекта (один участок) на горнолыжном курорте в г. Бакуриани (Грузия). Район Дидвели.
В шаговой доступности магазины, рестораны, подъемники:
1. Гондольного типа (действующий, удаленность от объекта 420м).
2 Гондольного типа (в проекте, удаленность от объекта - 200м, ветка проходит в 50м)
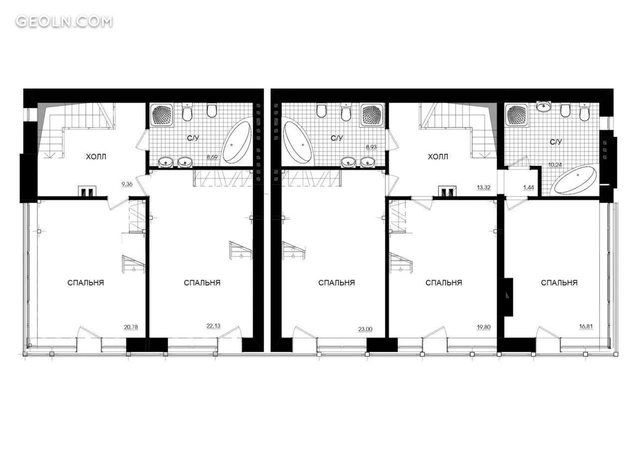
Объект 1. Коттедж (2этажа) общей площадью 155 м². Готовностью 75%. Дом комфортный, уютный, построен из высококачественных материалов: стены выполнены из красного кирпича; межэтажные перекрытия ж/б плиты (монолитные); крыша-металлочерепица (200мм утепление), Стены (100 мм утепление и 50мм фундамент).
Цоколь (по проекту- сауна и комната отдыха)-37, 88м2.
Первый этаж-41, 12м2.
Второй этаж-58, 17м2.
Терраса -18 м2.
Газ, свет (380), вода, канализация.
Цена: 146 м² * 750 $ = 109 500 $ (в цену включена половина её площади 9 м²)
Объект 2. Коттедж (2 этажа) общей площадью 232 м². Готовностью 75%. Дом комфортный, уютный, построен из высококачественных материалов: стены выполнены из красного кирпича; межэтажные перекрытия ж/б плиты (монолитные); крыша-металлочерепица (200мм утепление), Стены (100 мм утепление и 50мм фундамент).
Цоколь (по проекту- сауна и комната отдыха)-57, 38м2.
Первый этаж-62, 14м2.
Второй этаж-85, Зм2.
Терраса -27 м2. (в цену включена половина её площади 13 м²)
Газ, свет (380), вода, канализация.
Цена: 217 м² * 750 $ = 162 750 $
Цена всего комплекса 272 250 $
Hotline
Apartment for sale in Bakuriani on the map of Bakuriani
Бакуриани
FAQ
Recently viewed
Other objects nearby, Bakuriani
| Month | Total | Credit % | To debt | To percents | Balance |
|---|
Add to list «»?
