Haus in finnischer Technologie in odintsovo
Beschreibung des Objekts
Veröffentlichungsdatum: 17.02.2025
| Typ des Objekts | Ferienhaus |
| Fläche | 35,00 m2 |
| Schlafzimmer | 1 |
| Preis | 31.000$ |
| Kaufen online | mehr Informationen |
| Baujahr | 2024 |
| Stockwerk | 1/1 |
| Zustand | Renoviert und möbliert |
| Möbliert | Nein |
| mit Haushaltsgeräten | Nein |
| Deckenhöhe | 2,25 M. |
| Zustand des Gebäudes | Neubau |
| Typ der Heizung | Strom |
| Sicherheit | — |
| Bequemlichkeiten | |
| Katasternummer | 79099984317 |
Information
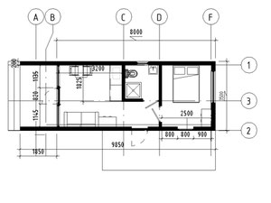
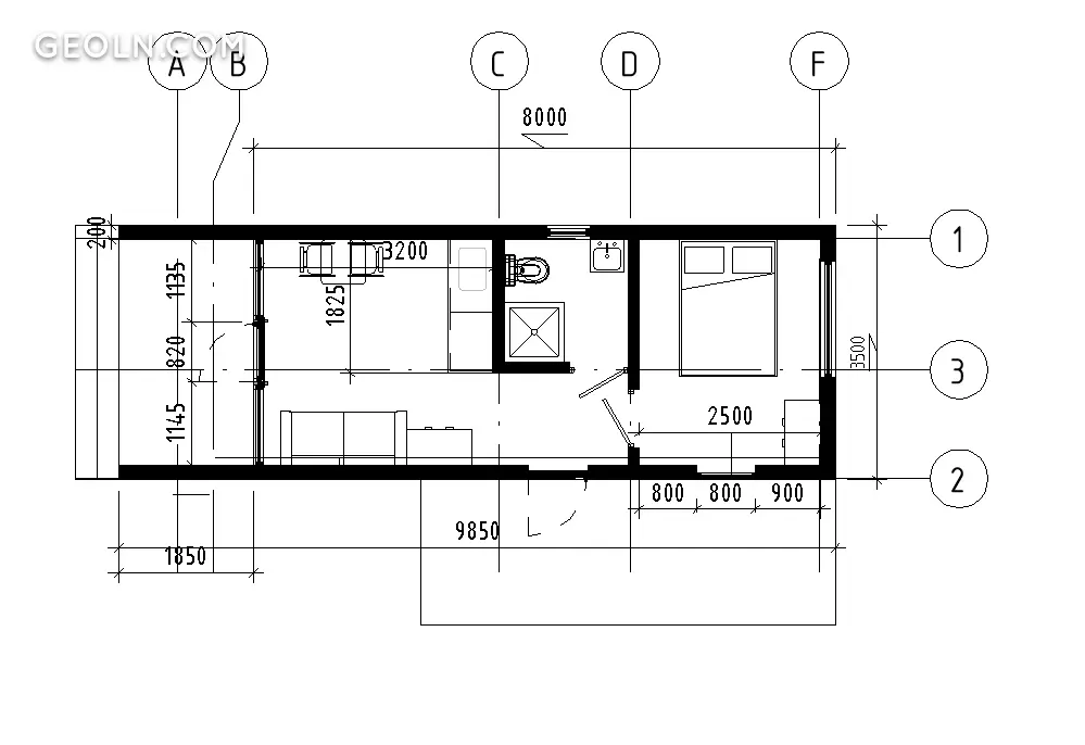
Продается стильный барн площадью 35 м²
Этот уникальный проект сочетает в себе финскую технологию строительства, высокое качество и стильный дизайн в стиле хай-тек. Идеальное решение для тех, кто ценит комфорт, функциональность и скорость!
Почему этот барн — ваш идеальный выбор:
+ Финская технология строительства — гарантия тепла, надежности и долговечности.
+ Встроенная кухня — готовое решение для комфортной жизни.
+ Эффективное отопление — два конвектора обеспечат уют в любое время года.
+ Санузел — все необходимое для современного проживания.
+ Срок строительства — всего 1 месяц! Быстро, качественно и без лишних хлопот.
Плюсы:
+ Теплый и энергоэффективный дом.
+ Стильный дизайн в духе хай-тек.
+ Компактно и функционально — идеально для жизни, работы или отдыха.
Этот барн — не просто дом, это готовое пространство для вашей новой жизни. Успейте забронировать!
Beratungstelefon
auf der karte
Верхнее Отрадное
zuletzt angesehen
| Monat | Insgesamt | % auf Kredit | In der Schuldentilgung | In der Rückzahlung von Zinsen | Guthaben |
|---|
Zur Liste hinzufügen «»?
