КОМЕРЦІЙНО ЖИТЛОВИЙ ОБ'ЄКТ У ПРИГОРОДІ СПЛІТУ в Сплит
Опис об'єкту
Дата публікації: 20.11.2024
| Тип об'єкту | Дім |
| Площа | 1700.00 м2 |
| Кількість спалень | Студія |
| Ціна | 2700000$ |
| Покупка онлайн | |
| Поверхів | 3 |
| Стан | Черний каркас |
| Мебльована | Ні |
| Є побутова техніка | Ні |
| Ліфти | 1 |
| Стан будівлі | Новобудова |
| Спосіб опалення | Електрика |
| Безпека | — |
| Зручності |
Парковка Комерційні приміщення Біля супермаркету |
Інформація
ВИКЛЮЧНА МОЖЛИВІСТЬ ДЛЯ ІНВЕСТИЦІЇ!
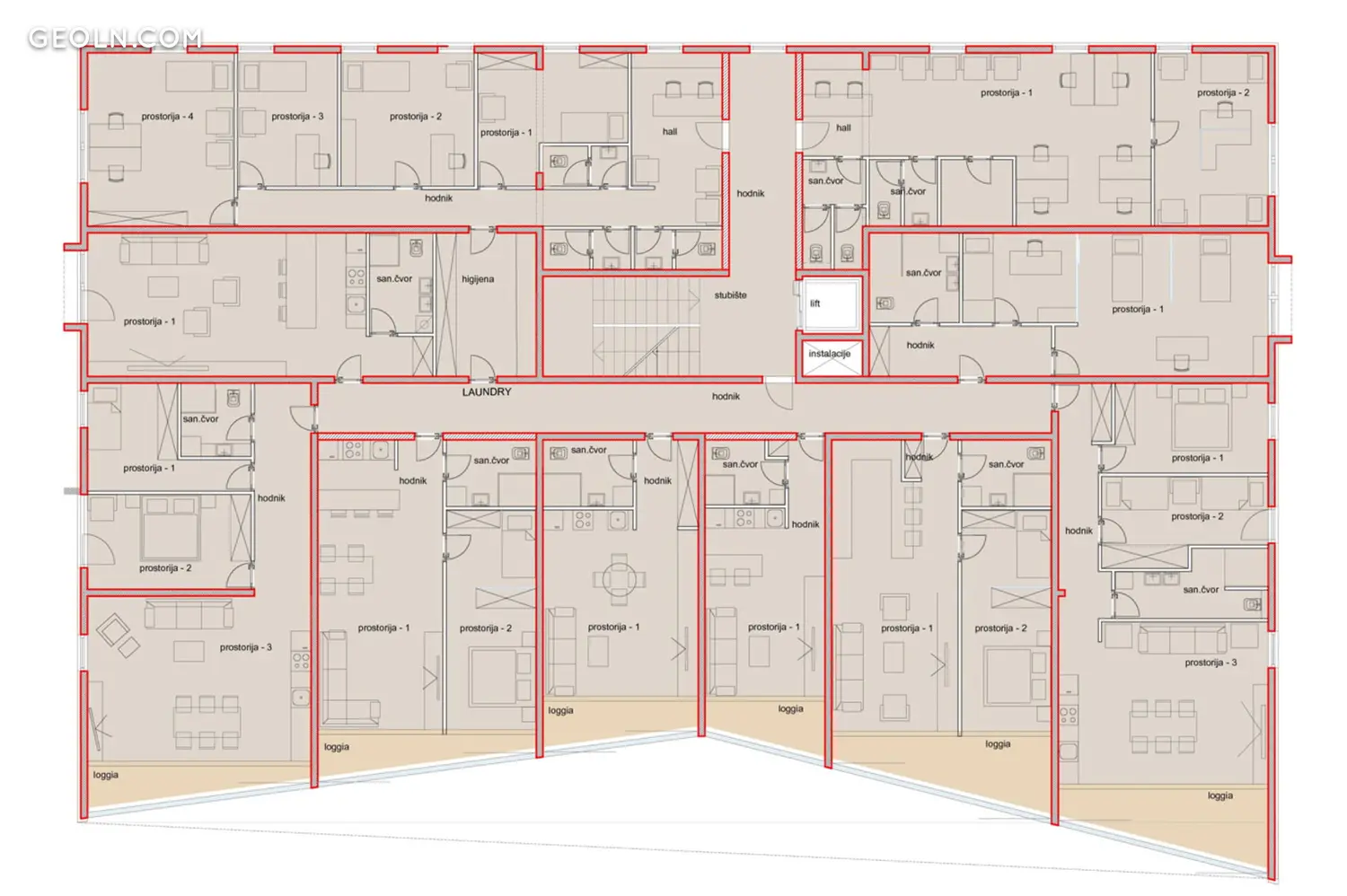
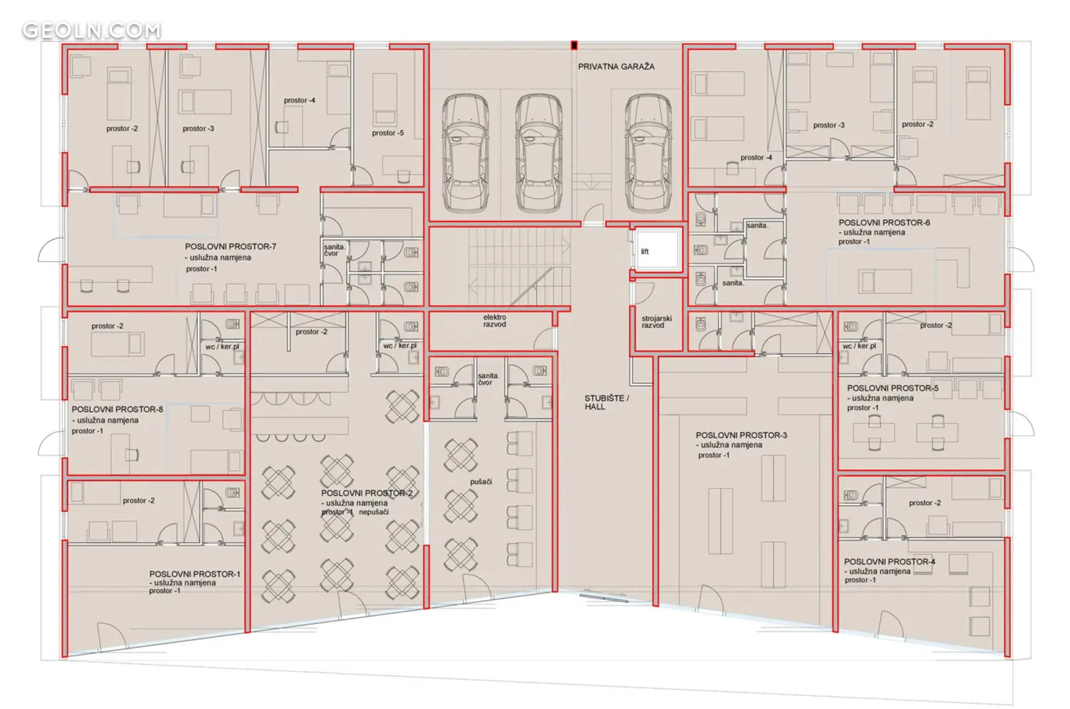
Продається комерційно житлова будівля на етапі будівництва, розташована на зручній локації в передмісті Спліта, всього за 120 м від моря. Будівля загальною площею бл. 1700 м2 будується на ділянці площею 2500 м2 і має три поверхи, з'єднаних внутрішніми сходами. Перший поверх складається з 8 приміщень та призначений для комерційного призначення у сфері послуг (стоматологія, перукарський салон, косметологічний кабінет, кафе тощо). Приміщення мають площу від 39 м2 до 123 м2 та обладнані сан. вузлами. На другому поверсі заплановано два офісні приміщення та вісім квартир (3 квартири-студіо, 2 квартири з двома спальнями та 3 квартири з однією спальнею). Сім квартир має тераси з панорамним видом на море. На третьому поверсі розташований пентхаус, площею 150 м2, що складається з просторої вітальні відкритого планування з кухнею та їдальнею, трьох спалень, двох ванних кімнат та передпокою. Пентхаус оточує тераса, площею 600 м2, з приголомшливим панорамним 360º видом на гори, море та острови. Тераса може містити тенісний корт, басейн, джакузі та літню кухню з грилем. Пентхаус має гараж для трьох автомобілів, розташований на першому поверсі будівлі, з якою безпосередньо з'єднаний ліфтом.
Будівля має паркінг для 35 автомобілів.
В даний час будівля в Roh-bau фазі та її ціна складає 2 700 000 євро. У міру просування будівельних робіт, ціна нерухомості змінюватиметься.
Додаткова інформація про об'єкт, його точну локацію та перегляд можливі після підписання з агентством договору про посередництво, який відповідає Закону про захист даних та Закону про брокерські послуги.
Гаряча лінія
на карті
Запитання-відповідь
Недавно переглянуті
Інші об'єкти поруч, Сплит
| Місяць | Всього | % по кредиту | В погашення боргу | В погашення відсотків | Баланс |
|---|
Додати в список «»?
