Karadağ. Luštica'da villa inşaatı için izinlerle güneşli arsa
Proje Açıklama
Yayın tarihi: 11.11.2024
| Binanın Türü | daireler |
| Alan | 553,00 m2 |
| Yatak odası sayısı | Studio |
| Fiyat | 99.000$ |
| Siteyle satın almak | |
| Katlar | — |
| Durum | Yenilenmiş ve döşenmiş |
| mobilyali | Hayır |
| Ev aletleri var | Hayır |
| Bina durumu | Yeni bina |
| Isıtma yöntemi | merkezi sistem |
| güvenlik | — |
| konfor |
Bilgi
Черногория. Солнечный участок с разрешениями на строительство виллы в Луштице.
№14153
99.000€
Тиват
Херцег Нови
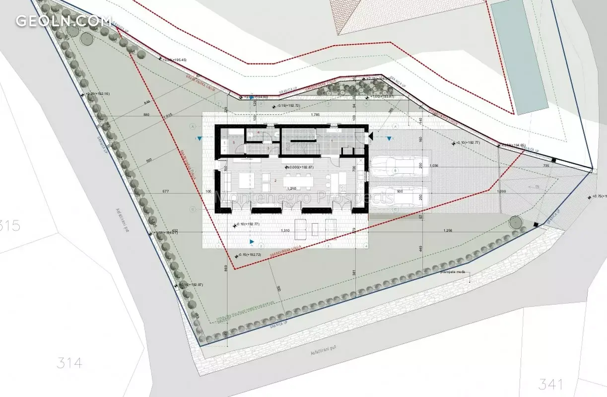
Продается привлекательный участок на солнечной стороне в деревне Мркови, Луштица.
Участок идеально подходит для строительства виллы и уже имеет все необходимые разрешения и оплаченные коммунальные сборы для трехкомнатного дома на два этажа с бассейном, крытой террасой и парковочным местом.
Проект включает первый этаж с просторной гостиной, кухней и столовой, а на втором этаже предусмотрены три спальни, каждая с собственной ванной комнатой. Участок ориентирован на запад и предлагает частичный вид на море.
Детали участка:
- Площадь: 553 м²
- Общая брутто площадь объекта: 169,40 м²
- Этажность: P+1
- Чистая площадь надземных этажей: 126,98 м²
Участок продается с утвержденным основным проектом, всеми необходимыми разрешениями и оплаченными коммунальными сборами, что позволяет покупателю сразу начать строительство.
Продаются также два соседних участка, которые так же имеют УТУ для строительства вилл.
Продадим вашу квартиру или дом.
Есть выбор квартир и домов в различном бюджете, в том числе и коммерческие объекты.
direkt hat
haritada
Sıkça Sorulan Sorular
En Son Görüntülenen
Yakındaki diğer nesneler, Tivat
| ay | Toplam | kredinin yüzdesi | faizsiz miktari | faiz miktari | balans |
|---|
listeye yükle «»?
