出售巴图米的公寓 在 巴统
转售说明
出版日期: 03.02.2025
| 项目类型 | 公寓 |
| 面积 | 51.00 м2 |
| 卧室的数量 | 开间房 |
| 价格 | 69900$ |
| 网上购物 | |
| 层 | 29 |
| 状态 | 已装修并配备家具 |
| 带家具 | 否 |
| 带家电 | 否 |
| 顶板高度 | 3.00 米. |
| 楼盘状态 | 新楼盘 |
| 暖气方式 | 中央 |
| 安全 | — |
| 舒适 |
停车场 儿童乐园 学校旁边 幼儿园旁边 超市旁边 |
| 看项目 | Sun Residence |
信息
Продаётся функциональная евродвушка для жизни с красивым видом на горы .
📍Адрес: улица Улица Ангиса, дом 78
✔️ Удобное расположение для постоянного проживания
• 50 метров до ТЦ Метро Сити
• 3 минуты до большого Парка Качиньских
• 5 минут до моря и набережной
✔️ Комплекс стандарт-класса «Metro Plus»
• Своё ТСЖ, хорошее управление
• Чистые и ухоженные подъезды
• Видеонаблюдение
• Развитая инфраструктура, рядом 4 крупных сетевых магазина, аптека, две кофейни, ресторан и ТЦ
✔️ О квартире:
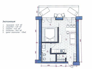
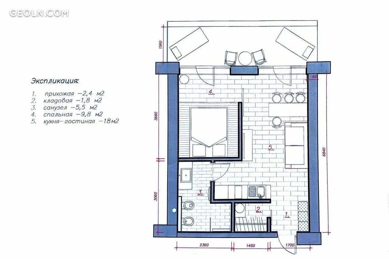
• Евродвушка, 1+1
• Площадь 51,85 м², 15/15 этаж
• Продуманная планировка
• Современный ремонт и минималистичный интерьер
• Необходимая мебель и техника
• Панорамное остекление
• Потрясающий вид на горы
💵 $69.900🔥
• Идеальна для жизни
• Ипотека для иностранцев при первом взносе в 40%
• Доходность от аренды ~ 7,8%
⁉️ Остались вопросы, пишите. Предоставим полную информацию, организуем показ, комфортно и безопасно проведём сделку. +995 595 95 67 67 Irina
იყიდება კომფორტული ორ ოთახიანი ბინა ანგისის 78-ში. ბინას აქვს კომფურტული ადგილმდებარეობა საცხოვრებლად, 50 მეტრი მეტრო სითიმდე, 3 წუთის სავალზე კაჩინსკის სკვერამდე და 5 წუთი ზღვამდე.
ბინა მდებარეობს "metro plus"- is კომპლექსში მოწესრიგებული სადარბაზოთი, ვიდეო კონტროლით, კარგი მომსახურე სისტემით, განვითარებული ინფრასტრუქტურით, ახლოსაა 4 დიდი ქსელური მაღაზია, აფთიაქი, 2 კაფე და რესტორანი. ბინა არის 1+1, ფართი 51,85 მ2, 15/15 სართულზე. კარგად დაპროექტებული, თანამედროვე რემონტი, საჭირო ავეჯით და ტექნიკით, პანორამული ხედებით მთებზე.
ფასი 69900$, იპოთეკა უცხოელებისთვის პირველადი 40% შენატანით. ქირავნობიდან მოგება 7,8% პროცენტი. დამატებითი კითხვებისთვის დამირეკეთ, ვუზრუნველყოფ ბინის კომფორტულ და უსაფრთხო დათვალიერებას. 595956767 ირინა
在地图上
Улица Ангиса, дом 78
最近看到的
附近的其他物体, 巴统
| 月 | 总共 | 贷款利息 | 清偿债务 | 偿清利息 | 差额 |
|---|
加上到列表 «»?
